
Rodinná vila v atraktivní čtvrti Žebětín na okraji Brna, kde se snoubí klidné prostředí okolní krajiny a lesů s dobrou dostupností na hlavní dálniční úsek. Lokalita obklopena přírodou, v blízkosti brněnské přehrady, hradu Veveří a Masarykova okruhu, činí z místa ideální kombinaci pro aktivní životní styl i odpočinek v soukromí. Díky své poloze tak vila nabízí panoramatické výhledy a dostatek intimity.
klient
soukromý
studie
2023/Q2
realizace
2025/Q2
fotografie/vizualizace
KYZLINK ARCHITECTS
Ocenění

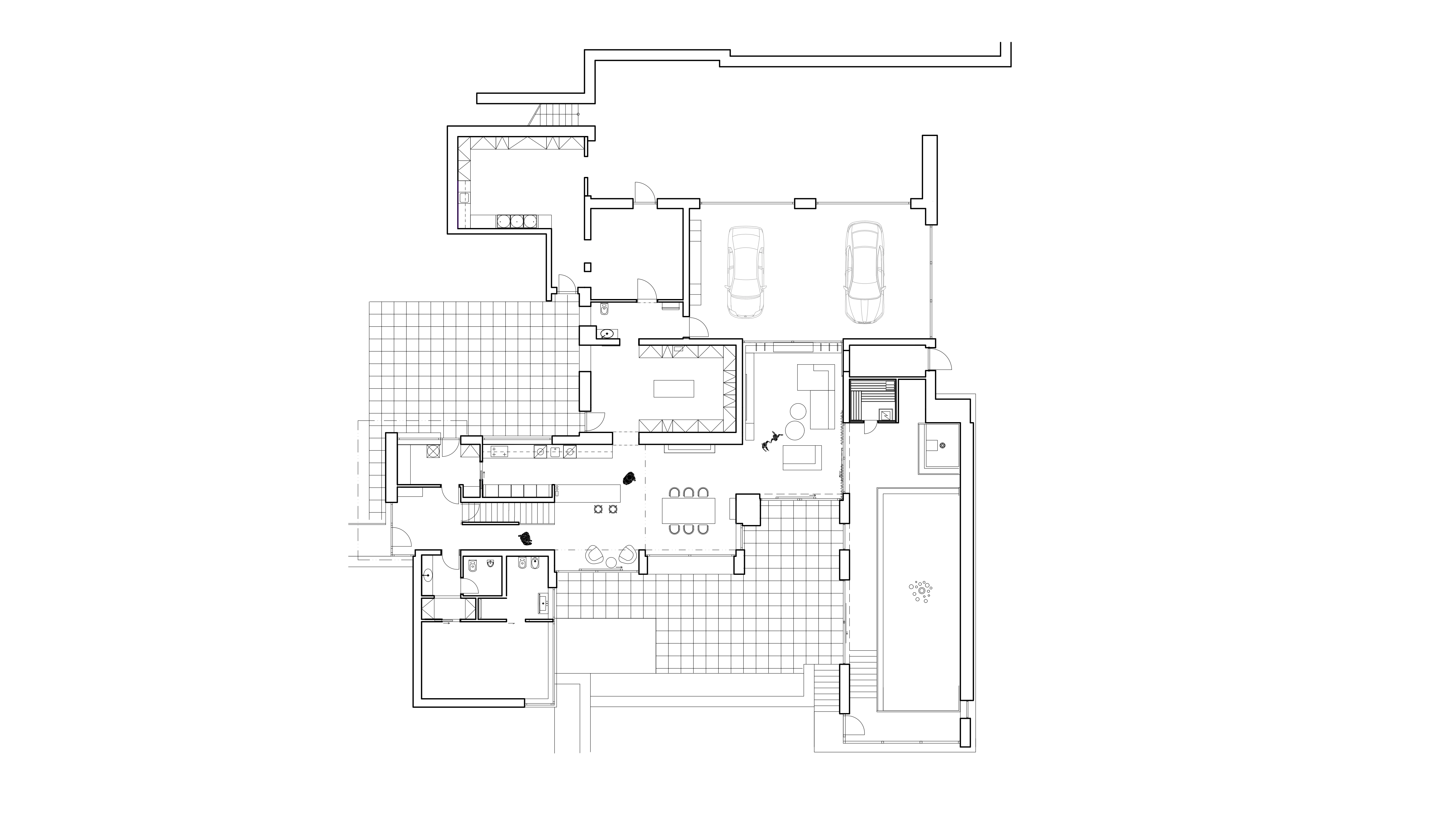
Návrh sleduje cíl přetvořit původní, neosobní a tvrdé interiérové řešení za využití harmonických a přátelských palet barev a materiálů. Samotný koncept návrhu vychází z propojení moderní estetiky a osobnosti majitelů. Obytný prostor je navržen s důrazem na otevřenost a plynulé přechody mezi jednotlivými částmi interiéru i exteriéru. Několik teras tak rozšiřuje obytnou plochu o venkovní relaxační zóny a nabízí odpočinek u bazénu a venkovní kuchyň pro posezení s rodinou a přáteli. Jelikož je pozemek výrazně svažitý, terasy byly nutně tvořeny jako kaskády. Původní provedení kaskádových teras bylo zkultivováno a přetvořeno ve více funkční celek. V interiéru pak najdeme reprezentativní kuchyň i obývací pokoj, velkorysé šatny, posilovnu, galerii s klavírním křídlem a tajné skryté dveře pro zajištění soukromí pro obytné části. Zároveň je do interiéru promítnuta vášeň majitele pro hokej – prostor je tedy vybaven tak, aby nabízel komfortní prostor pro sledování zápasů a vystavení hokejových memorabilií.
Materiálové řešení stojí na použití prémiových povrchů a detailů, které podtrhují luxusní charakter domu. Dominují zde moderní materiály v kombinaci s decentními texturami a rafinovaným nasvícením v podobě nepřímého i přímého osvětlení a designových svítidel, které podporují atmosféru interiéru. Zlaté akcenty v kombinaci se sklem a tmavšími tóny přinášejí eleganci, zatímco přírodní povrchy zajišťují nadčasovost a komfort. Výsledkem je vila, která spojuje špičkový design, osobitost a vysoký standard bydlení.

