.webp)
Hlavním impulsem pro vytvoření nových prostor byla proměna přístupu k využívání kanceláří. Flexibilní pracovní doba a hybridní model práce přinesly nové nároky na jejich design. Expanze odráží proměnu vnímání pracovního prostředí v postcovidové éře – důraz je kladen na ergonomii, kvalitní osvětlení a celkové pohodlí.
klient
Notino
studie
2023/Q2
realizace
2025/Q1
fotografie/vizualizace
KIVA Photography
Ocenění
Kanceláře roku 2025 - Velké kanceláře


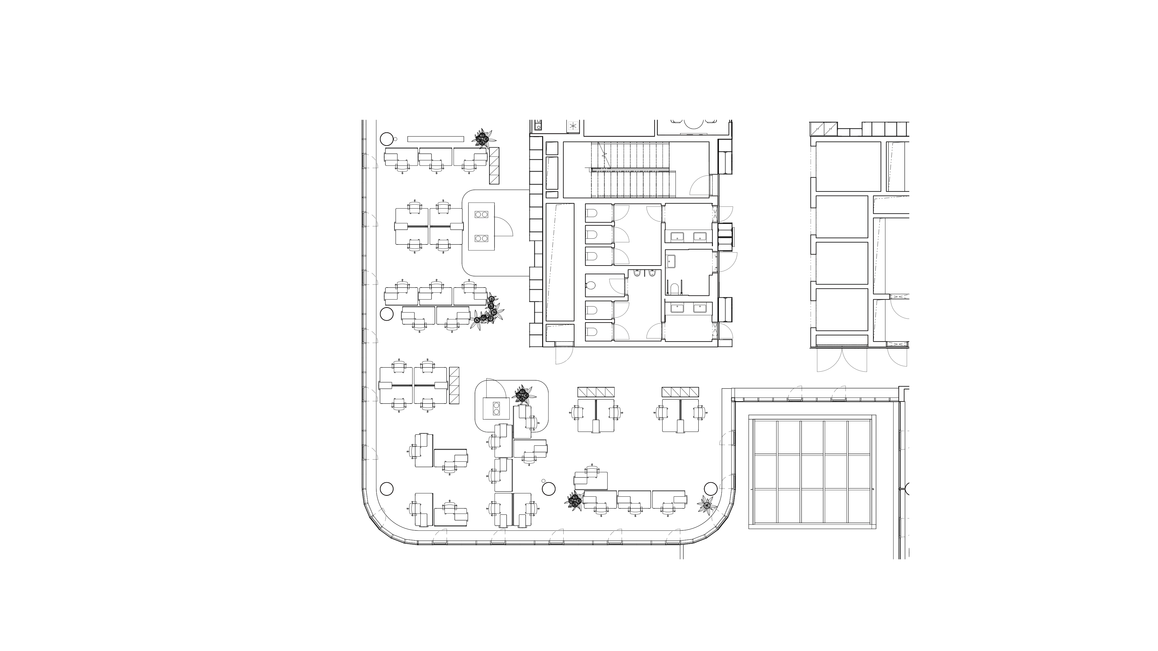
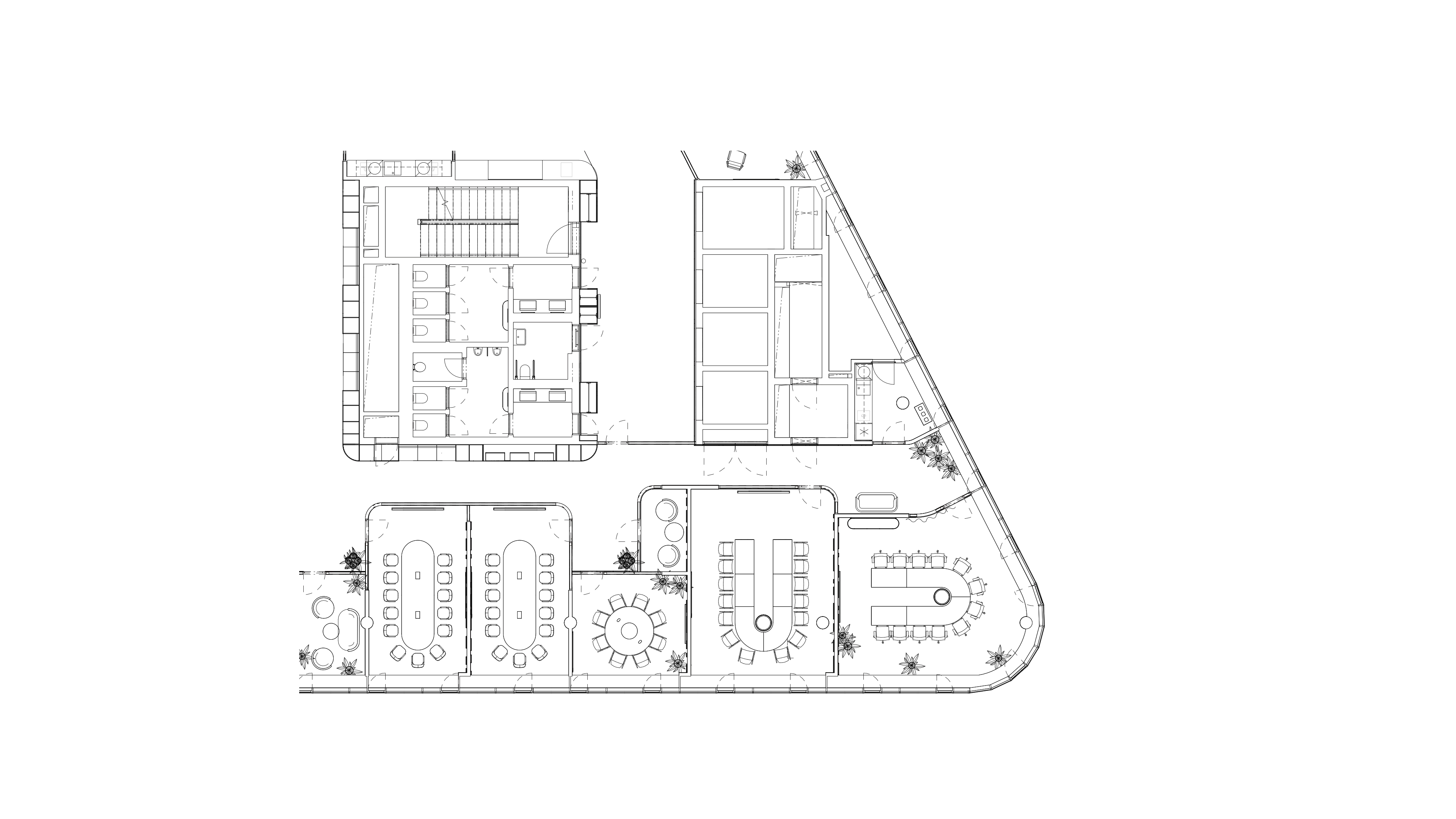
Dvanáctipatrová budova je koncipována modulárně, což umožňuje efektivní a vyvážené rozložení pracovních míst. Každé patro se drží konceptu „smart & beauty“, který propojuje funkční estetiku s nejmodernějšími technologiemi a významnými investicemi do pracovního prostředí. Přes 95 místností je zapojeno do rezervačního systému a slouží jako zasedačky, coworky, knihovny či telefonní budky. Klíčovým prvkem je precizně navržené kancelářské patro. Půdorysy byly optimalizovány tak, aby vznikala přirozená zákoutí pro pohodlnou práci a zároveň se eliminovaly dlouhé průhledy napříč prostorem.

Původní černobílý koncept byl nahrazen přístupem, který podporuje pocit domova – použití dřeva, zemitých tónů a bohaté zeleně vytváří příjemnou a inspirativní atmosféru. Zasedací místnosti staví na transparentnosti a rozmanitosti. Prosklené stěny umožňují vizuální propojení, přičemž každé patro má odlišnou barevnou kombinaci, která se nikde neopakuje.

