
Lipno nad Vltavou je malebná rekreační oblast v jižních Čechách, známá svou nádhernou přírodou, čistým jezerem a širokou nabídkou aktivit pro návštěvníky v každém ročním období. Nově navržený luxusní hotel je situován v atraktivní části tohoto regionu, v těsné blízkosti vodní hladiny Lipenské přehrady, obklopený hustými smrkovými a borovicovými lesy, které zajišťují klid, soukromí a jedinečnou atmosféru.
klient
Realactiva
studie
2023/Q3
realizace
fotografie/vizualizace
KYZLINK ARCHITECTS
Ocenění

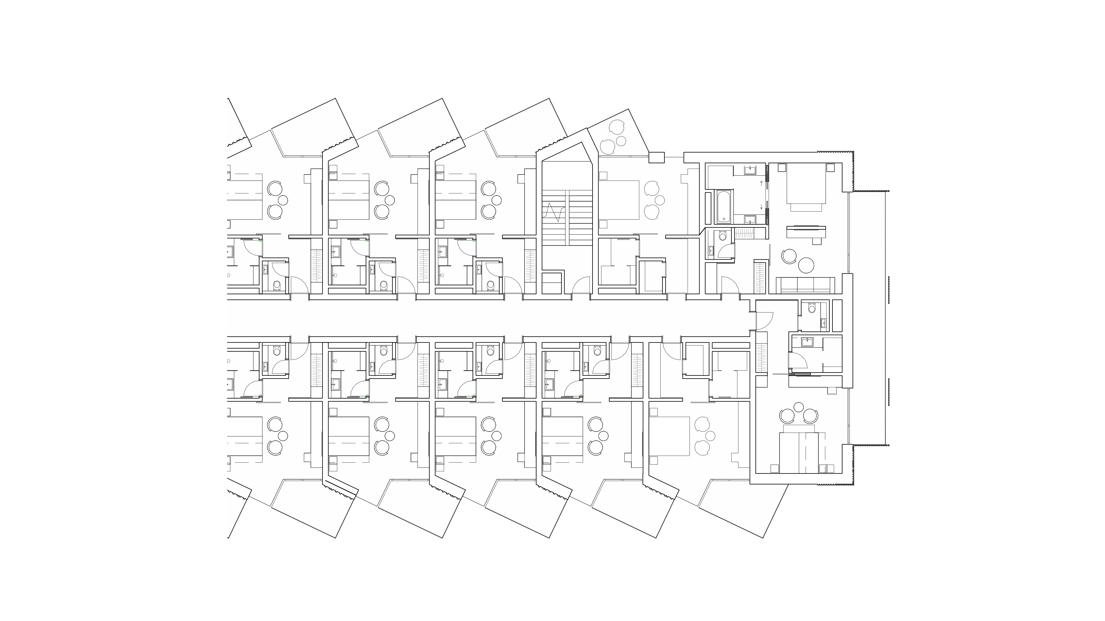
Návrh vytváří luxusní pětihvězdičkový hotel s výhledem na vodní hladinu Lipna a jak vybavení, tak okolí hotelu nabízí návštěvníkům množství aktivit na slunečné i deštivé dny. Nedílnou součástí pětihvězdičkového hotelu jsou nástupní prostory a hlavní vstup. Ty často společně s fasádou tvoří první ochutnávku a formují první dojmy všech návštěvníků a hostů. Jako důležitý prvek, který odráží život uvnitř hotelu, je vhodné osvětlení fasády. To se propisuje do interiéru ve formě světelné scény, která dynamicky proměňuje veřejné části hotelu v závislosti na denní době, atmosférických podmínkách, či tématických akcích.

S respektem k lokalitě a charakteru území, ve kterém se projekt nachází, rozvíjíme myšlenky vody, vodních prvků, vln a vodou vyšisovaného dřeva. V celém interiéru jsou používány kvalitní luxusní materiály, jako je mramor, masivní dřevo a zlaté prvky. Barevnost je odvozena od interiéru daného prostoru a vychází ze základních elementů, kde modrá barva reprezentuje vodu, oranžová oheň, bílá vzduch. Vzhledem k ambicím MOLO HOTEL projektu navrhujeme materiály s čistou energií. Věk a rostlou strukturu materiálu vnímáme jako pravou hodnotu.

