
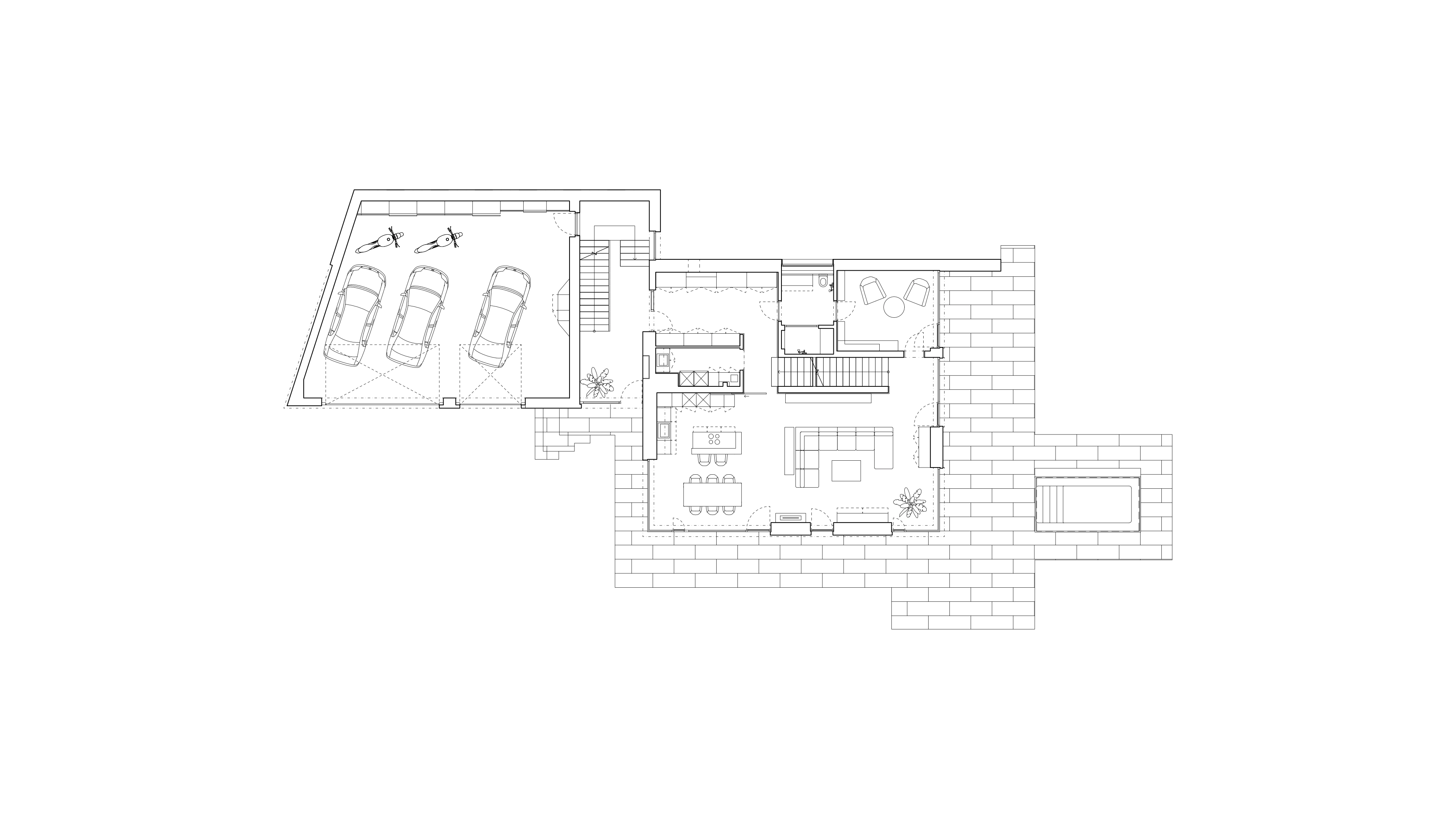
Rodinná vila nedaleko centra Brna, jejíž sousedem je les. Budova navržena dle aktuálních trendů moderní architektury, chránící soukromí obyvatel ze stran veřejných přístupů a pohledů, se naplno otevírá do zahrady. Ta se ve své délce svažitě mění na lesní stráň a z interiéru se tak nabízí úchvatný výhled na přírodu, se kterou je díky velkorysé ploše prosklení propojen. Propojení s okolním světem zajišťuje prostorná garáž. V návrhu bylo myšleno i na nejmenší obyvatele. Dům je vybaven skrytými dvířky pro kočky s čipovým klíčem.
klient
soukromý
studie
2019/Q4
realizace
2024/Q4
fotografie/vizualizace
KIVA Photography
Ocenění


Základní myšlenkou je moderní bydlení spojující klid, luxus, pohodlí a soukromí. Výsledný vzhled působí majestátně a zároveň decentně kombinuje prvky minimalismu se svéráznou svébytností a osobitým charakterem. Soukromí zajišťuje vhodná orientace oken, stínící technika a mohutná vjezdová brána z plechových lamel. Za ní je ukrytý vjezdový dvůr a velkorysá garáž pro ustájení nekolika vozidel. Dům dopňuje velká zahrada s vířivkou, jezírkem a zahradním domkem, který si svým materiálovým řešením bere inspiraci z hlavní budovy a nabízí zázemí pro relax s přáteli. Celý dům je řízený systémem chytré domácnosti.
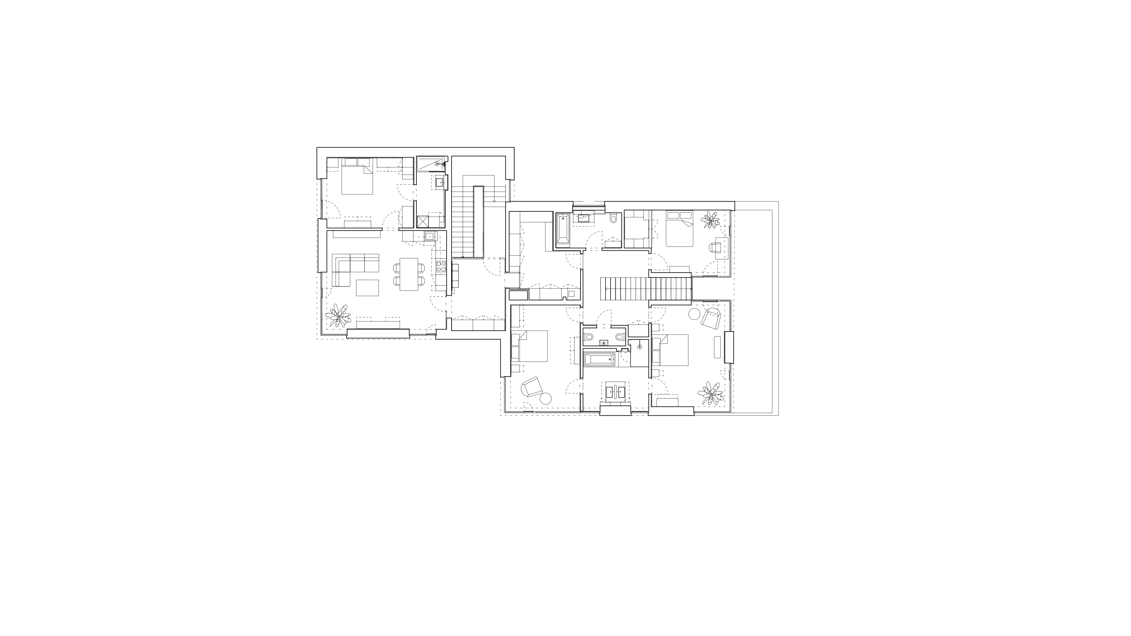
Objekt je tvořen dvěma nadzemními podlažími a je podsklepen. Sklep je mozkem celého domu, jelikož se zde nacházejí veškeré technologie a řídící jednotky. Samotný dům je vybaven prostornou kuchyní spojenou s obývacím pokojem, knihovnou, velkou šatnou, luxusními ložnicemi a koupelnami. Nad garáží se navíc nachází apartmánový byt nabízející samostatnou bytovou jednotku s vlastní kuchyní a koupelnou.

Materiálové řešení využívá výběr decentních, minimalistických barevných palet s důrazem na kvalitu a přírodní materiály. Exteriérové provedení staví na čistých fasádách s velkými okny. Kontrastním prvkem jsou kompaktní desky v cortenovém dekoru. V přízemí se pak mísí černě lakovaná ocel s kamenným zdivem, které stavbu pomyslně uzemňují. Horizontální plochy jsou odlehčeny v podobě pískovcové dlažby. V interiéru převládá přírodní dřevo, a to v medovém odstínu na podlahách a tmavě hnědé dýze na stěnových obkladech a nábytkovém vybavení. Obytné místnosti zútulňují měkké koberce. Na několika místech je interiér doplněn uměleckými díly, čalouněnými prvky v barevnosti odkazující na zavodní automobily či prosvětlenou grafikou na skle, která odkazuje na slavnou onyxovou stěnu vily Tugendhat.

