
V rámci mezinárodní spolupráce českých architektů s globálním vedením společnosti vznikly prostory, které jsou pro zaměstnance inspirativní, inovativní a minimalistické.
klient
Infosys
studie
2019/Q4
realizace
2020/Q2
fotografie/vizualizace
Jiří Hloušek
Ocenění

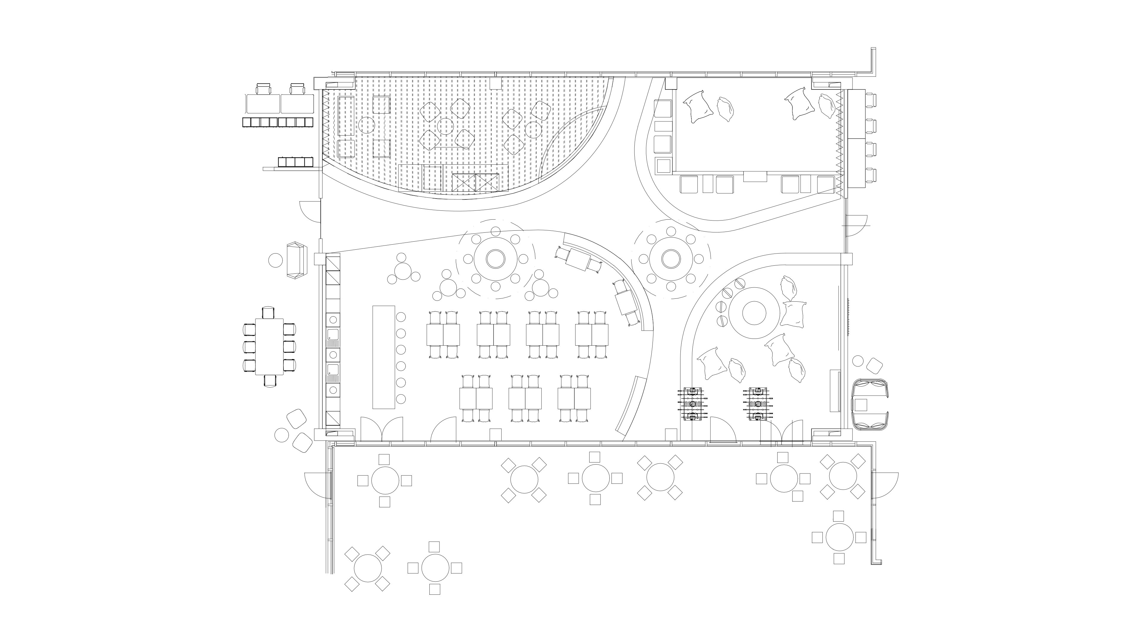
Hlavní designovou myšlenkou nových kanceláří bylo propojit 3 elementy: přírodu, svět a barvy; a zachytit tak v designu symboliku vize společnosti a její cestu vpřed. Celý kancelářský koncept se nese v příjemných tónech různých variací barev, které jsou však pojaty velmi minimalisticky a doplňují je citáty slavných osobností. Každá barva je jakýmsi pomyslným kouskem či částí světa, usnadňuje navigaci napříč patry a umožňuje společnosti modulárně nakládat s jednotlivými sekcemi firmy.

Zasedací místnosti jsou pojmenovány podle zemí a každé patro patří jednomu kontinentu (Evropa, Afrika, Asie, Amerika), což umožňuje zaměstnancům cestovat po celý den. Prostory sestávají ze 4 poschodí umístěných ve dvou budovách, které jsou vzájemně propojeny, a tím pádem umožňují nekonečný pohyb lidí napříč všemi odděleními. Prostory fitoutu jsou navrženy tak, aby přiváděly co nejvíce přirozeného světla. To je optikou klienta vnímáno jako důležitý faktor, který na pracovišti přispívá ke kreativitě, produktivitě a štěstí pracovníků.
