
Kompletní architektonická studie vily v dynamické části moravské metropole. Důraz na měkkost, křivky a měkkou dynamiku hmot vytváří unikátní projekt.
klient
soukromý
studie
2020/Q2
realizace
2025/Q1
fotografie/vizualizace
KYZLINK ARCHITECTS
Ocenění

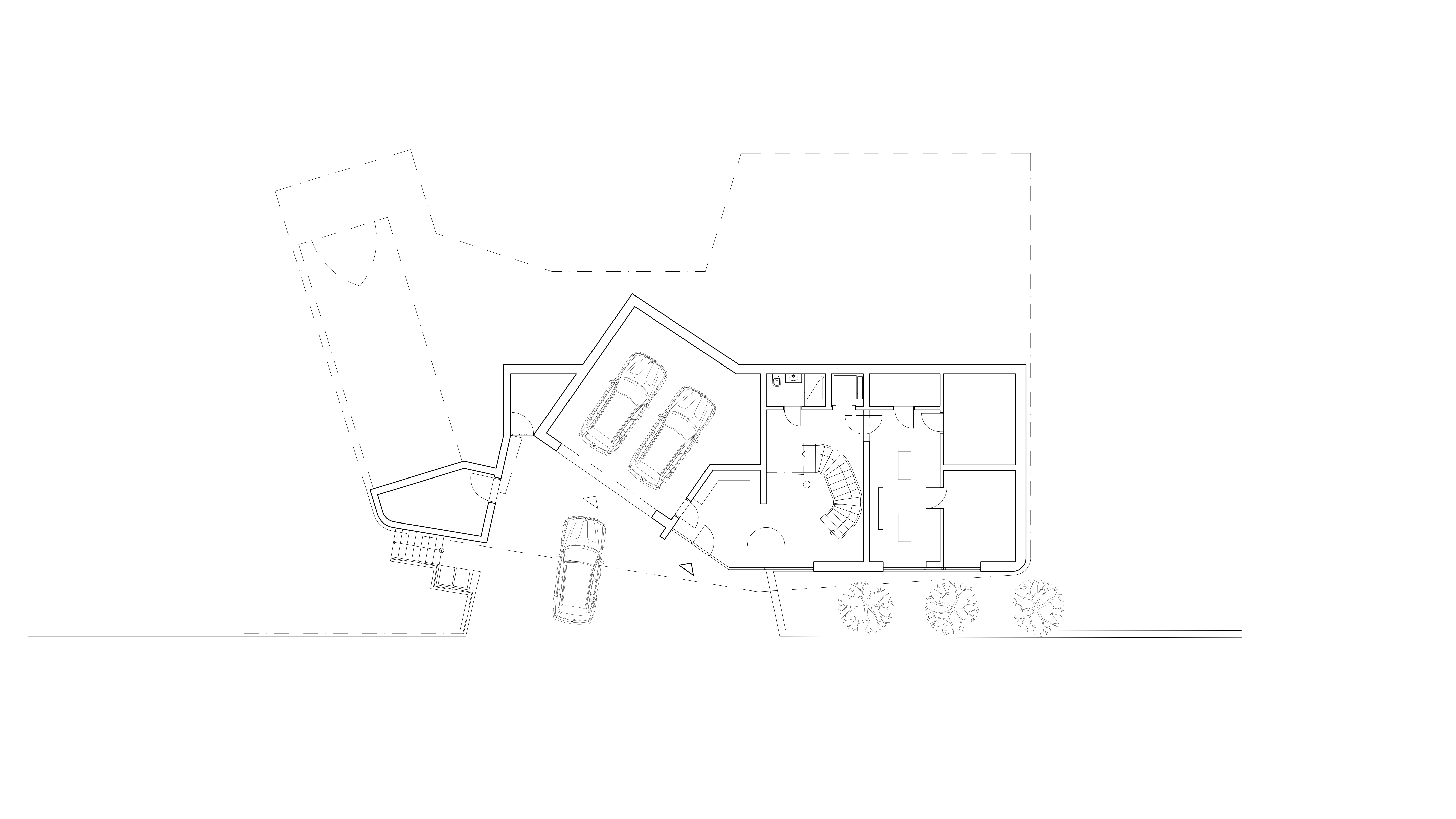
Krásný jižní svah ve velmi žádané rezidenční lokalitě je přímo předurčený pro nadstandardní bydlení. Nádherný panoramatický výhled předurčuje horizontální objem domu. Elegantní tvar je tvořen pomocí půdorysné rotace a zalomení jednotlivých desek – podlaží domu. I přes strohou jednoduchost dům působí měkce a dynamicky.

Suterén navazuje na parter – prostor před domem, který je koncipován jako polo-veřejný. Hlavní obytné patro se díky výškovému rozdílu dostává nad ulici, ale současně navazuje na zahradu a terasu. Půdorys ve tvaru „J“ pak umožňuje vznik malého soukromého wellness. Obytná plocha je rozšířena také o malé atrium. Nejvyšší patro pak funguje tako kapitánský můstek. Víceúčelový prostor s panoramatickým výhledem může sloužit jako pracovna, herna či prostor pro hosty.
