
Areál bývalého hotelu Myslivna od architekta Jana Dvořáka byl po desetiletí známý nejen jako místo ubytování, ale i jako konferenční centrum a oblíbený bod pro rekreaci, svatby či firemní akce. Vzhledem ke své poloze mimo hustě zastavěné území, obklopený zelení a lesem, působil jako přirozený přechod mezi městem a volnou krajinou
klient
soukromý
studie
2020/Q2
realizace
2026/Q2
fotografie/vizualizace
Studio Horák + KYZLINK ARCHITECTS
Ocenění

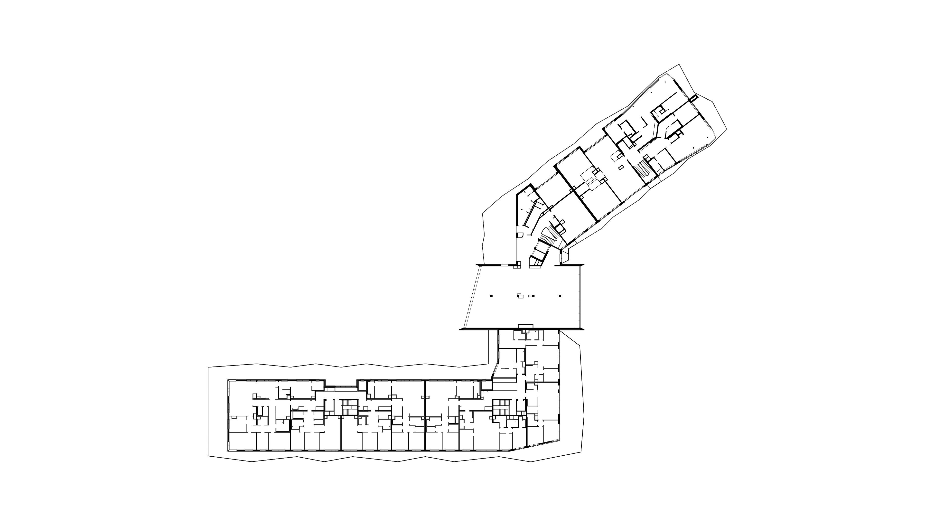
Okolní les měl, má, i bude mít v tomto území bezpochyby největší hodnotu. To definovalo směr ve tvorbě návrhu už na začátku. Hmota objektu respektuje okolní terén, kdy ustupující podlaží připomínají vrstevnice. Rozvlněná podlaží reprezentují pomyslné řezy stromovými patry. Výjimečností tohoto projektu je umístění rezidenčního developmentu městského charakteru do prostředí rostlého lesa.
Snažili jsme se minimalizovat nové materiály, které se v okolí nevyskytují. V interiéru proto ve společných prostorách používáme zejména kámen a tvrdé dřevo, pracujeme s přírodními texturami. Výtvarník Josef Zlámal do projektu vnáší další estetické prvky.

Vedle jedinečného lifestylu pro rezidenty nabídne Nová Myslivna přidané hodnoty i pro návštěvníky zvenčí. Ti mohou využívat služeb wellness a fitness, které v komplexu vznikne, nebo si vychutnat kulinářské zážitky doprovázené působivými výhledy na město ve střešní restauraci. Z jejích teras se budou otevírat pohledy na věže Špilberku či Petrova nebo na malebné Pavlovské vrchy v dáli.
Dle starých zpráv a dochovaných skutečností je s místem úzce spjata trojice významných brněnských osobností – Jiřího Mahena, Rudolfa Těsnohlídka a Vladislava Vančury. Ti si údajně oblíbili místní hospůdku, která se stala oblíbeným výletním cílem Brňanů. Traduje se, že výše zmínění tři přátelé dokonce zasadili v těchto místech borovici. Motiv stromu je tak nedílnou součástí celého charakteru místa.
