
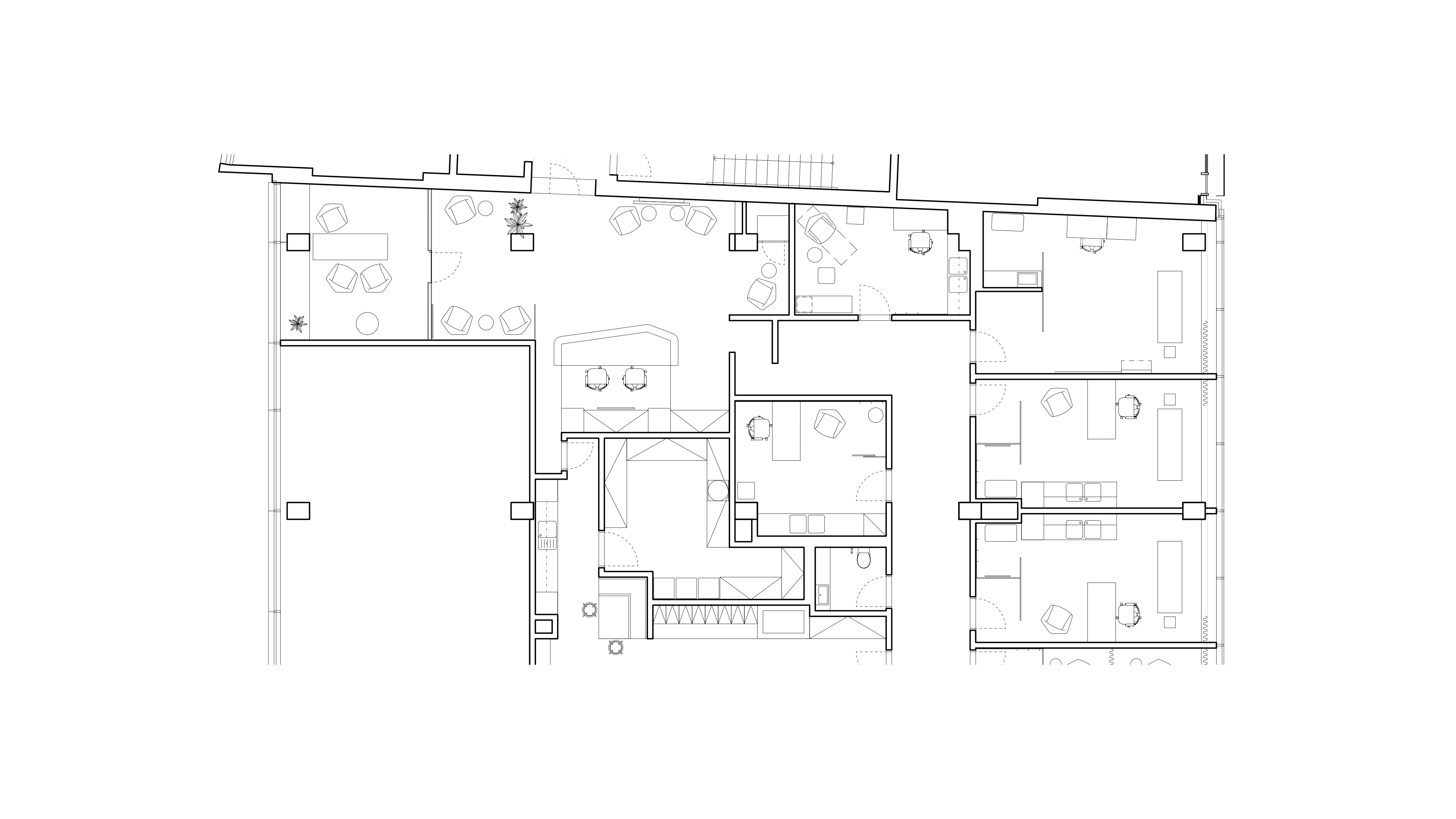
V srdci prestižního komplexu Titanium, jen pár minut od historického centra Brna, vznikl luxusní interiér prémiové kliniky Momentum Clinic – místa, kde se špičková péče o mužské zdraví snoubí s nadčasovým designem. Strategická poloha kliniky zajišťuje snadnou dostupnost a propojení s městem, zatímco samotný interiér ztělesňuje hodnoty značky Momentum: důvěru, diskrétnost a moderní eleganci.
klient
Momentum Clinic
studie
2024/Q2
realizace
2025/Q1
fotografie/vizualizace
Studio Topolář + KYZLINK ARCHITECTS
Ocenění


Základní koncept interiéru vychází z cíle vytvořit funkční a vizuálně energické prostředí pro péči o mužské zdraví. Každá část prostoru odráží diskrétnost, nadstandardní služby, vitalitu těla i mysli a umožňuje klientovi zažít léčbu jako luxusní zážitek. Návrh propojuje stabilní antické sloupořadí s dynamickou křivkou recepce, energickými zelenými plochami a moderním osvětlením. Pevné tradice a důstojná historie jsou tak protknuty moderní energickou přítomností. Tento kontrast odkazuje na přístup k pacientům, kdy cílem péče není zastavit čas, ale energicky s ním držet krok.
Materiálové řešení interiéru kombinuje luxus, energii a stabilitu. Hlavními prvky jsou dřevěné obklady stěn, obložení sloupů v dekoru kamene, energické zelené plochy v britské závodní zelené a třpyt mosazných akcentů a výrazného čalounění zlatých odstínů. Prostor je uklidněn lesklým mramorem ve veřejných částech a vinylovou podlahou s dekorem pískovce v ordinacích lékařů. Celkovou atmosféru dotváří moderní LED osvětlení, kombinující přímé i nepřímé světelné linie dynamických tvarů.
