
Rezidenční řadový objekt v pražském Karlíně se secesní uliční fasádou byl postaven v roce 1909 a je součástí městské památkové zóny Karlín. Hodnotné společné prostory domu byly dochovány téměř v původním stavu - nášlapné vrstvy podlah, schodišťové zábradlí klenby či vstupní dveře do bytů. Historická stopa domu je značná a cílem návrhu bylo na ni navázat a vhodně ji doplnit soudobou podobou designu interiéru.
klient
Urbaneo
studie
2024/Q3
realizace
2025/Q2
fotografie/vizualizace
Zuzana Šale + KYZLINK ARCHITECTS
Ocenění

Základním prvkem interiéru společných prostor je zelená barva vyskytující se již historicky na vstupních dveřích do bytů, zábradlí a dalších prvcích. Nánosy času přinesly obměny a cílem projektu bylo navázat na historickou stopu, sjednotit a restaurovat prvky společných prostor. Světle zelená barva se tak stává propojujícím prvkem mezi dochovanou historickou částí společných prostor a moderním designem vnitřního prostoru bytů.

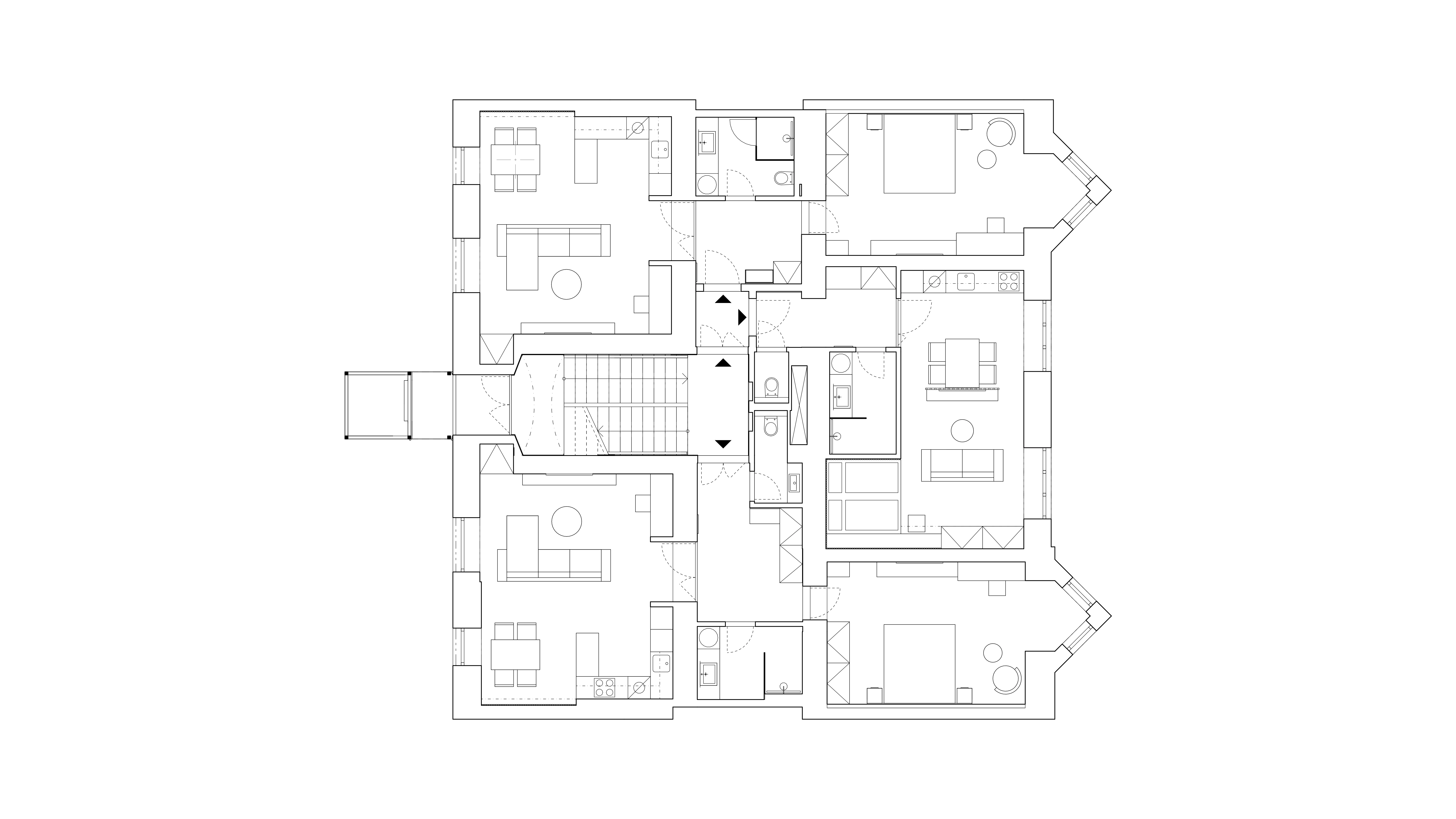
Objekt má pět nadzemních a jedno podzemní podlaží. Sklepní prostory byly očištěny a budou využity pro komerční účely. V nadzemních podlažích je navrženo celkem 15 bytových jednotek s dispozicemi 1+kk – 3+kk. Důraz v dispozičním řešení byl kladen na dostatečnou velikost zázemí bytů, úložného prostoru i pokojů. V podkroví objektu jsou nově navrženy dvě větší bytové jednotky využívající sklon střechy k umístění galerie pro spaní.

Vstupní dveře do bytů a zábradlí na hlavním schodišti jsou provedeny v zelené barvě. Ta se propisuje v bytových jednotkách v podobě nábytkových paravánů a lamelových obkladů stěn. Podlahy v bytech jsou dřevěné, kladené v parketovém vzoru. Celkově je design interiéru laděn v jemných světlých barvách v kombinaci s přírodním odstínem dřeva. Vzdušnost bytů dotváří skleněné dvoukřídlé interiérové dveře do hlavního obytného prostoru.
