
Obec Rozdrojovice leží na severozápadním okraji Brna, představuje atraktivní lokalitu spojující klid venkova s dostupností městské infrastruktury. Obec se rozprostírá v členitém terénu nad přehradní nádrží Brněnská přehrada a nabízí výhledy na okolní lesy, pole a mírně zvlněnou krajinu, která je typická pro tuto část jižní Moravy.
klient
soukromý
studie
2019/Q1
realizace
2022/Q4
fotografie/vizualizace
KIVA Photography
Ocenění

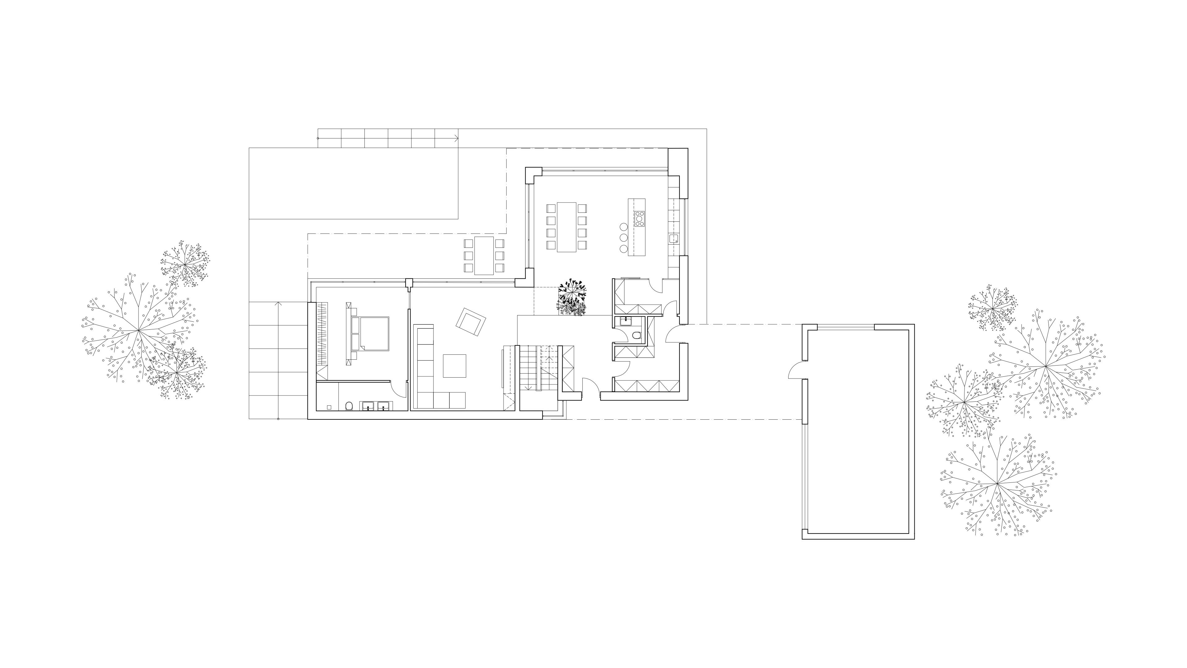
Na pozemku o rozloze 1600 m2 jsme navrhli moderní rodinný dům s dvěma nadzemními podlažími a nádherným výhledem na Mniší horu. Hmota objektu je definovaná jednoduchými geometrickými tělesy s jemnými horizontálními liniemi, které vnáší pocit stability a jistoty. Čistě bílá fasáda umocňuje pravoúhlou kompozici pomocí kontrastu osvětlených a zastíněných ploch. Černé detaily v kombinaci s bílou fasádou podtrhují eleganci a nadčasovost stavby.
Největší část domu tvoří velkorysý obývací prostor, který je propojen s jídelnou a kuchyní. Tato společenská část přirozeně navazuje na zahradu a využívá všech jejich výhod, jako je klid, soukromí a dostatek osobního prostoru. Nedílnou součástí zahrady je pak zahradní domek a bazén. Celková zastavěná plocha domu činí 370 m2 a užitná plocha dosahuje 420 m2.
