
Lokalita je charakteristická mírným terénním reliéfem, bohatou zelení a vilovou zástavbou z různých období 20. století. Ulice je situována v bezprostřední blízkosti přírodního parku a zároveň v dostupné vzdálenosti od centra města, což z ní činí atraktivní místo pro bydlení s vyváženým vztahem mezi městskou infrastrukturou a soukromím v přírodním prostředí. Charakter lokality určuje kombinace historizujících vil, moderních rodinných domů a celkově harmonická urbanistická struktura.
klient
soukromý
studie
2020/Q4
realizace
2024/Q1
fotografie/vizualizace
KIVA Photography
Ocenění

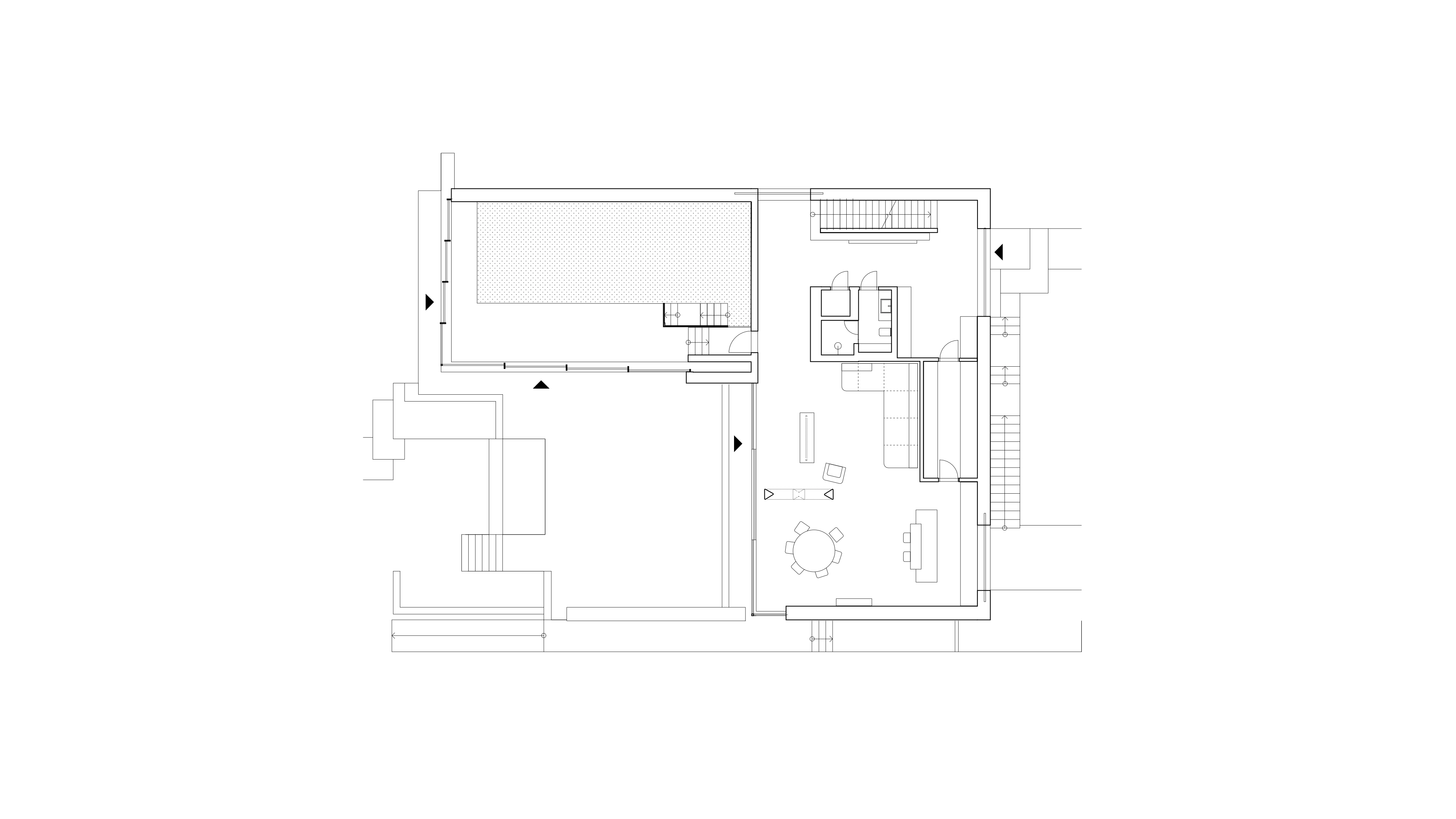
Vila respektuje okolní mírně svažitý terén a charakter vilové zástavby. Svým jednoduchým a čistým tvaroslovím reaguje na potřebu harmonického začlenění do zeleného prostředí a nabízí moderní bydlení s důrazem na soukromí a komfort.

Objekt je řešen jako vícepodlažní vila, která kombinuje obytné a relaxační prostory s garážovým a technickým zázemím. Prostorové uspořádání umožňuje využití denních částí i soukromých pokojů s přímým kontaktem na exteriér.
Použité materiály jsou zvoleny s ohledem na kvalitu, trvanlivost a estetickou hodnotu, typickou pro moderní rezidenční architekturu. Vila je vybavena prvky energetické úspornosti a moderními technologiemi zajišťujícími komfort bydlení.

