
Obec se nachází v malebné krajině s návazností na blízkou metropoli. Lokalita je charakteristická kombinací přírodního prostředí, klidného rezidenčního zázemí a výborné dostupnosti do města. Zástavba je rozvolněná složená zejména z rodinných domů, které respektují terénní reliéf. Díky své poloze nabízí atraktivní výhledy na okolní lesy, louky a zalesněné svahy, které tvoří harmonické pozadí pro bydlení v přímém kontaktu s přírodou.
klient
soukromý
studie
2024/Q1
realizace
2025/Q2
fotografie/vizualizace
KYZLINK ARCHITECTS
Ocenění


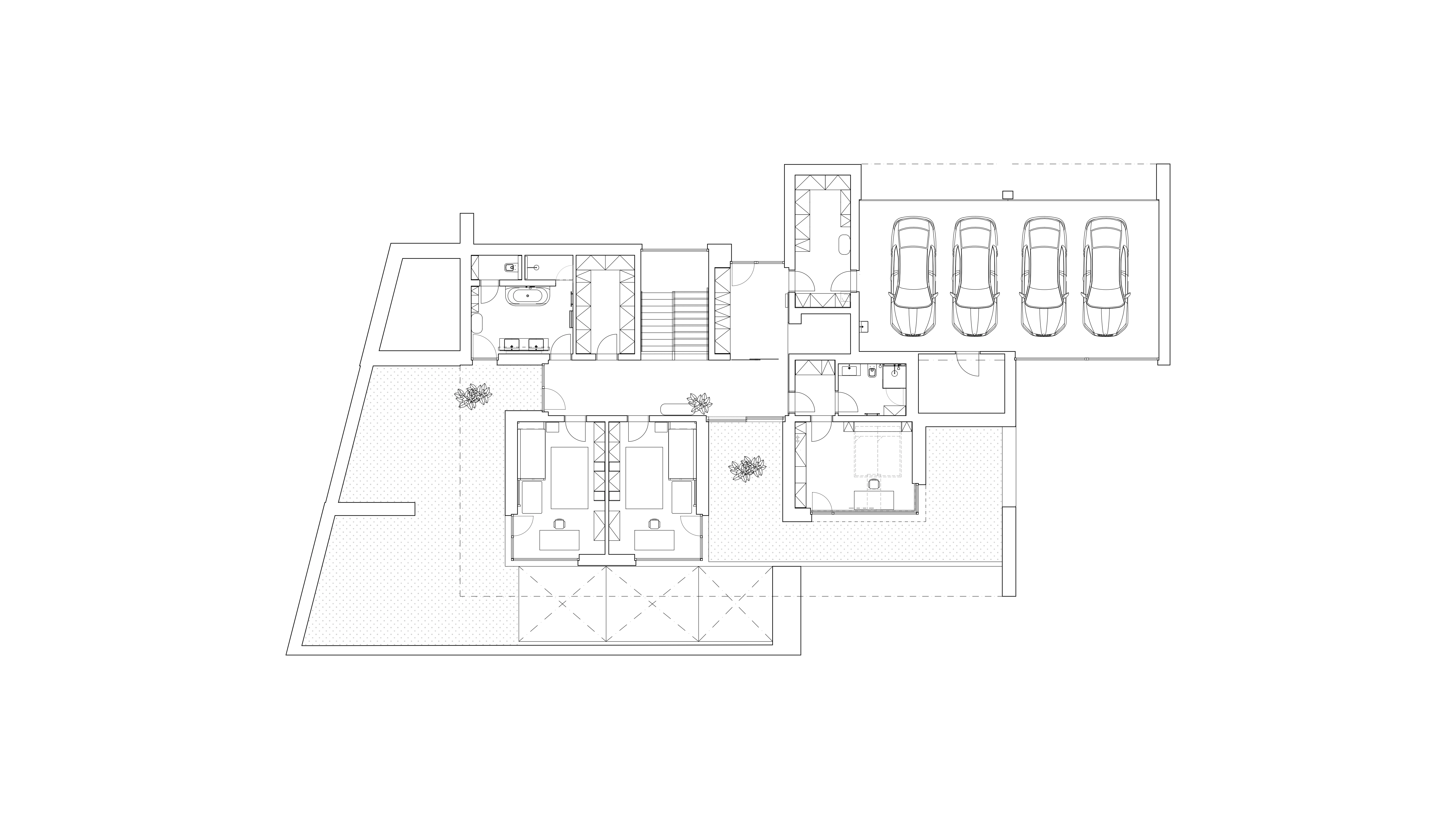
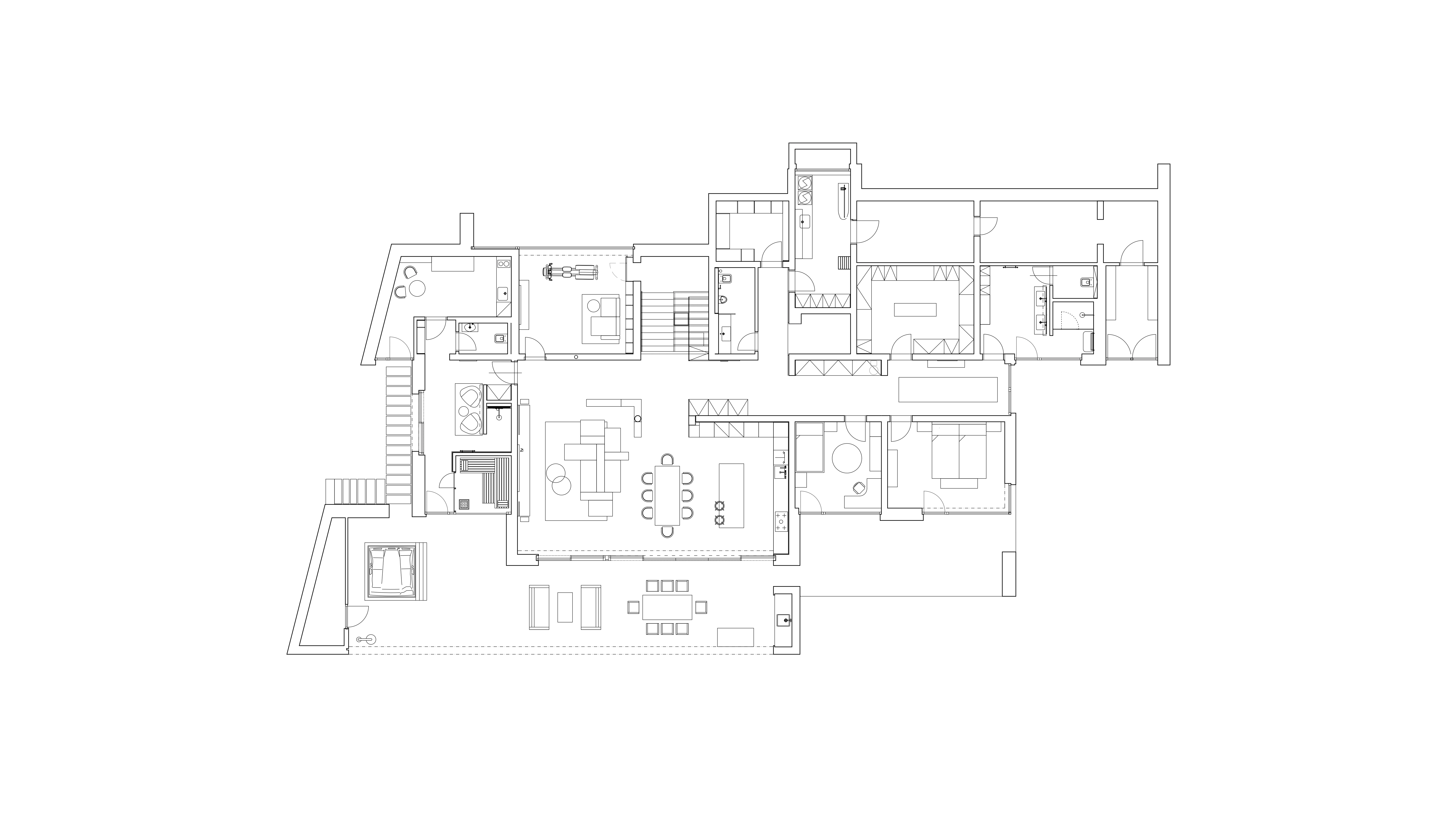
Dispoziční řešení zcela definují požadavky klienta a zároveň terénní náročnost pozemku. Do dvoupodlažního objektu se vstupuje vrchním podlažím ve výškové úrovni souběžně s příjezdovou komunikací. Zde se nachází dětská zóna s pokojem pro hosty a garáží. Jako hlavní podlaží vnímáme spodní - zapuštěné ve svažitém terénu s přímým vstupem do klidné zahrady s výhledem.

Použité materiály v interiéru a důsledně vybraná paleta barev vytváří pocit zcela prosvětleného prostoru přírodním světlem i přes poměrně hlubokou dispozici. Jedním z cílů bylo vytvořit prostor, který je vzdušný a velkorysý. Místo, kde Skleněné plochy jsou efektivně rozmístěny a každá hraje důležitou úlohu v dynamickém průniku světla a stínu do interiéru.


