_2-3.webp)
20. – 40. léta byly Klánovice místem odpočinku pražské smetánky. Dnes je místo luxusní rezidenční čtvrť. Na pozemku se původně nacházela starší vilka, která byla zbourána.
klient
soukromý
studie
2011/Q4
realizace
2014/Q2
fotografie/vizualizace
Martin Kotulan
Ocenění

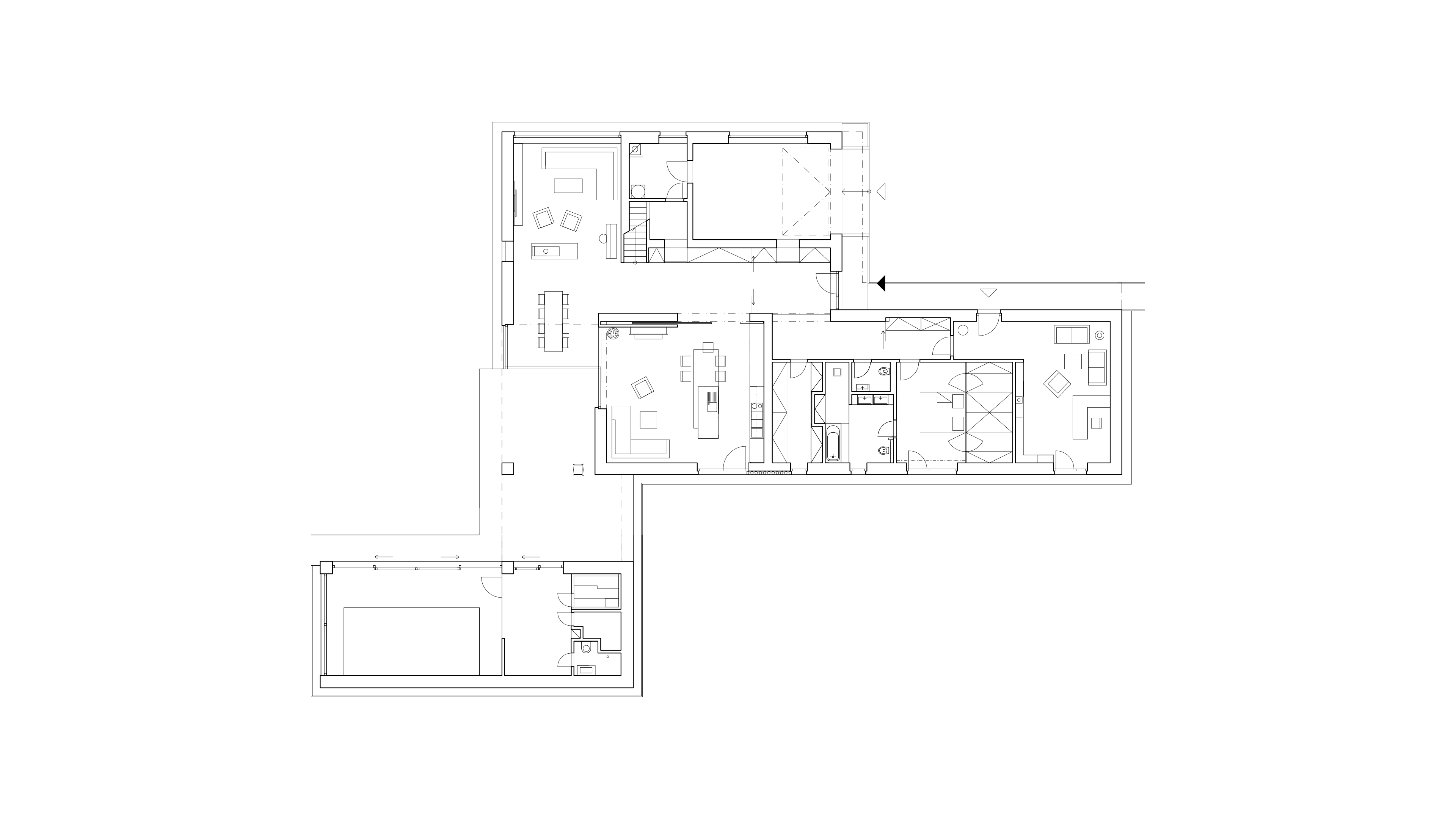
Rozlehlá parcela umožnila rozdělení vily do čtyř objemů, navzájem propojených, a určujících funkci vnitřního prostoru. Celou stavbou vily prochází tzv. osa domu, která je v esovitém tvaru a díky níž jsou definovány prostory objektu.

Inspirací nám byl soulad s přírodou, proto byly hlavně využity materiály jako kámen a dřevo. V interiéru jsme chtěli zachovat elegantní linie, které jsou provázány s nábytkem ve vysokém lesku.
