
Původní areál byl postaven v duchu krásného brněnského funkcionalizmu. Architekt Jindřich Kumpošt vytvořil v tehdy rozvojovém území bezesporu velmi výraznou a důležitou stavbu - depo dopravního podniku pro město Brno. Některé prvky funkcionalistických staveb jsou vnímány širokou veřejností jako zcela nadčasové. V budoucích letech spolu s rozšiřováním a zahušťováním městského centra bude účel širšího území stále více zaměřen na bydlení. Řešená oblast se v posledních letech stává strategicky velmi výhodnou - jak v kontextu rozvoje jižního centra tak i nově formované náplavky řeky Svratky.
klient
GR8 INVEST
studie
2021/Q2
realizace
2026/Q3
fotografie/vizualizace
KYZLINK ARCHITECTS + STUDIO HORÁK
Ocenění

Naším cílem je přirozeně navázat na dnešní trendy a překonat kvalitu současné zástavby. Všechny vstupní předpoklady vedou k vytvoření moderního jedinečného projektu, který zmíněnému území vdechne nový život. Zároveň zanechá odkaz na historii místa v moderně pojatém odrazu dvoupodlažní kumpoštovy skleněné sloupko-příčkové fasády. (v prostoru nároží na dvou obloukových fasádách obchodních jednotek.)
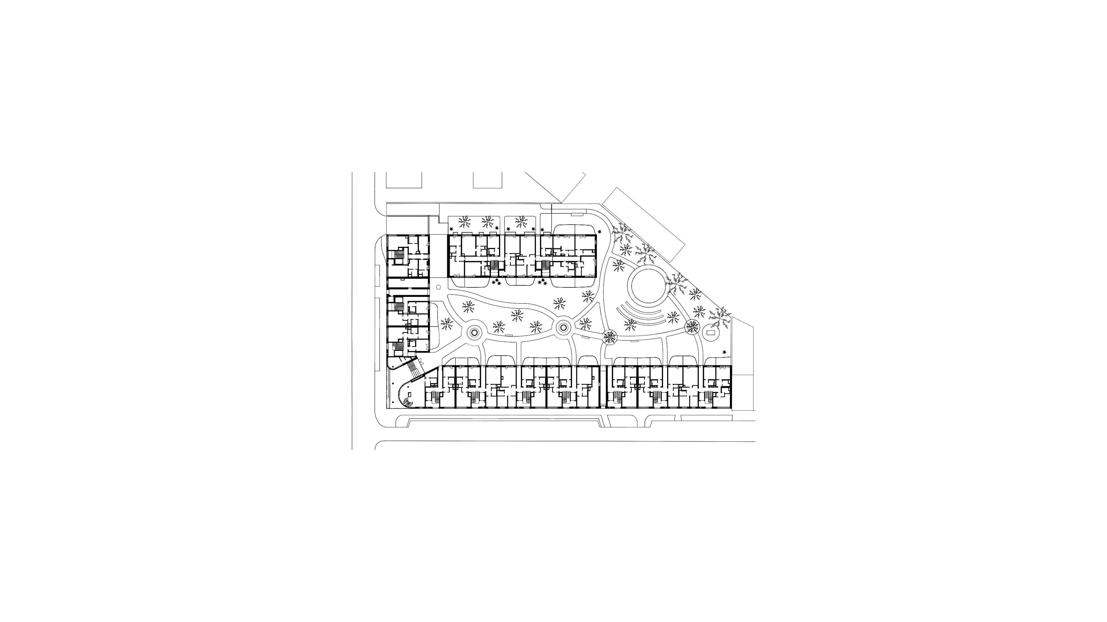
Velkým tématem pro celý objekt je přítomnost živé zeleně. Každý kousek zeleně snižuje teplotu města a jako přírodní prvek je nedílnou součástí každodenního života. Uliční prostor plynule navazuje čtyřmi vstupy na vnitroblok, který je společenským srdcem celého objektu. Vytváří přirozené podmínky pro setkávání obyvatel i mezigeneračních interakcí.

Nároží ulic Vojtovy a Grmelovy poskytuje příležitost pro vytažení hmoty. Tím vzniká lokální dominanta, která slouží jako orientační prvek v ulici a zároveň zdůrazňuje hlavní vstup do objektu. Samotný bytový dům má 7 nadzemních podlaží se 196 bytovými jednotkami. Součástí je také podzemní parkování, které je umístěné ve dvou podzemních podlažích s celkovým počtem 268 stání.

Objekt pro bydlení by neměl zásadně upozorňovat a vyvolávat nadbytečnou pozornost. Barva základní fasády není bílá, ale lomeným kávovým odstínem jemně reaguje na okolní barevnou výstavbu. Rytmické opakování okenních otvorů a lodžií není pravidelné. Vytváří tedy pocit klidné, ale dynamické síly. Vertikální propojení okenních otvorů 1. a 2. nadzemního podlaží je odkazem na původní Kumpoštovu architekturu a rozděluje opticky objekt na horizontální části.
