
Objekt kulturního domu je jednou z dominant nového centra Mostu. Byl postaven v letech 1978 – 1984, autory jsou Mojmír Böhm, Luboš Kos, Jaroslav Zbuzek a sochař Stanislav Hanzlík. Hmotově členitý objekt tvoří několik vzájemně propojených železobetonových bloků vyzdvižených na podpory. Na střeše centrální části je umístěna měděná kopule planetária. Vzhledem k havarijnímu stavu stavbu se město rozhodlo pro rekonstrukci a povýšení funkce na kulturně vzdělávací centrum - přesun městské knihovny jako jedné z hlavních funkcí objektu. Naším úkolem byl kompletní návrh interiéru veřejně přístupných částí objektu.
klient
Město Most
studie
2025/Q2
realizace
2027/Q2
fotografie/vizualizace
KYZLINK ARCHITECTS
Ocenění

Myšlenka konceptu je odráží od hlavní funkce objektu, kterou reprezentují knihy. Ty jsou významným prvkem pro přenos informací, vědění. Základním médiem je papír. Hru se základním koncepčním prvkem papíru pak symbolizuje origamy, střižený papír, skládání, lámání, odstíny barev či lámání světla - prvky, které se objeví v různém provedení v rámci interiéru ve všech veřejných částech a dávající tak celé budově jednotný charakter i přes rozdílnost jednotlivých funkcí. Budovu vnímáme jako čistý nepopsaný list papíru (základ interiéru v tlumených barvách) doplněný o barevné akcenty (mobiliář, malba a grafika).
Vstupní část knihovny je tvořena prostornou dvoranou a je velmi důležitou součástí objektu. Jedná se o místo setkávání, prostor pro trávení času návštěvníků. Vnímáme ji jako vnitřní náměstí, kde se odehrává život knihovny, umocňují to také dva mumifikované stromy v centrální části. Součástí se recepce, skříňky pro návštěvníky a prostor čítárny s denním tiskem. Hlavní výpůjční prostor knihovny se nachází na úrovní 2. NP a je členěn na sekce. Pro dětské oddělení je využit uzavřený prosklený prostor na západní fasádě. V uzavřeném prostoru původního kinosálu je navržena mystická část fantasy.
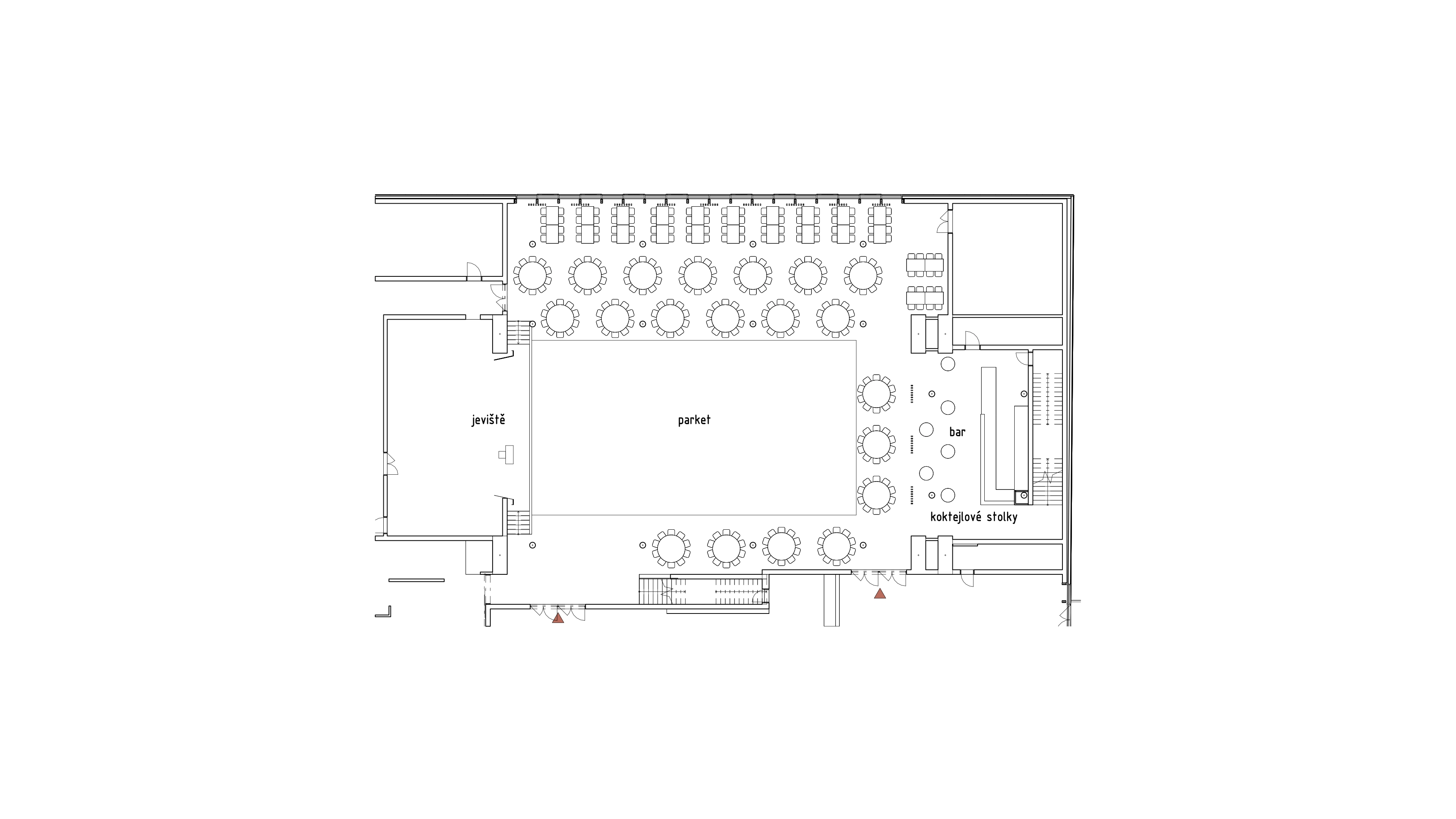
Součástí návrhu je také řešení interiéru společenského sálu, malého kinosálu a kanceláří pro zaměstnance na úrovni 3. NP. Společenský sál předpokládá variabilní uspořádání a multifunkčnost prostoru pro společenské, kulturní i vzdělávací akce. Interiér je navržen v tlumených elegantních barvách v návazností na koncept papíru. Proti tomu kinosál je tmavým prostorem odpovídajícím funkci, kde se pojetí papíru propisuje na ztvárnění akustických obkladů.
